3141 CENTRAL AVE NE Washington, DC 20018
3 Beds
2 Baths
1,232 SqFt
Open House
Sun Dec 07, 1:00pm - 3:00pm
UPDATED:
Key Details
Property Type Single Family Home
Sub Type Detached
Listing Status Active
Purchase Type For Sale
Square Footage 1,232 sqft
Price per Sqft $486
Subdivision Woodridge
MLS Listing ID DCDC2230528
Style Colonial
Bedrooms 3
Full Baths 1
Half Baths 1
HOA Y/N N
Abv Grd Liv Area 1,232
Year Built 1942
Annual Tax Amount $4,881
Tax Year 2025
Lot Size 8,000 Sqft
Acres 0.18
Property Sub-Type Detached
Source BRIGHT
Property Description
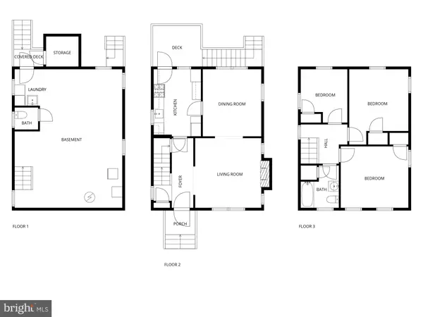
Discover the good life in Woodridge with this charming 3BD/1.5BA brick home complemented with one incredible, expansive private backyard.
Throughout the home are original wood floors, fixtures and finishes (including doors and trim), which add a touch of elegance to a delightful living room (with brick fireplace) and light-filled dining room perfect for entertaining and everyday meals alike. The kitchen leads out to the top of a two-tiered back deck looking out on a terraced backyard that stretches the length of houses. Just imagine the landscaping potential and all the seasonal adventures that await you!
Upstairs are three bedrooms that share a full bathroom and tree-filled views of the neighborhood. The unfinished basement (with half bath) is perfect for storage or a home gym—and with a little imagination and design could be transformed into a comfy entertainment room. And when you're ready to explore the neighborhood, you're just a short walk along neighborhood streets to Langdon Park Rec Center, Woodridge Library, Zeke's Coffee, and the bustle of Rhode Island Avenue.
•
Location
State DC
County Washington
Zoning R-1B
Rooms
Basement Connecting Stairway, Rear Entrance
Interior
Hot Water Natural Gas
Heating Radiator, Hot Water
Cooling Window Unit(s)
Fireplaces Number 1
Fireplace Y
Heat Source Natural Gas
Exterior
Water Access N
Accessibility Other
Garage N
Building
Story 3
Foundation Other
Above Ground Finished SqFt 1232
Sewer Public Sewer
Water Public
Architectural Style Colonial
Level or Stories 3
Additional Building Above Grade, Below Grade
New Construction N
Schools
School District District Of Columbia Public Schools
Others
Senior Community No
Tax ID 4319//0067
Ownership Fee Simple
SqFt Source 1232
Special Listing Condition Standard
Virtual Tour https://youtu.be/XrxkFjtmZ5I







